电子围栏

共 162 讨论,7天新增 1 个讨论,30天新增 2 个讨论

电子围栏系统大样图,直接下载,根据自己项目特点进行拆分使用。电子围栏系统大样图.dwg
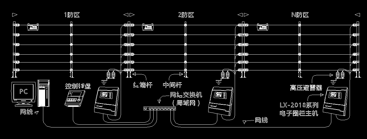
电子围栏系统图
这个是艾礼安厂家提供给我的电子围栏系统图,刚好昨天收到网站重新运营的消息,今天不忙就分享一下。ca1d25fcb628135adf08d110aab838c3.dwg
东莞拓天电子围栏整体解决方案   CAD图   业务联系: 冯志刚 区域经理 18128668504 0769-82303809 2850963614@qq.com 0769-82303819东莞拓天...

2 人关注该话题

热门话题

思科路由器

弱电深化设计

草地音箱安装大样图

前沿切向调光

通信光缆

All Rights Reserved Powered BY WeCenter V4.1.0 © 2026 粤ICP备20025096号-2
  

粤公网安备 44190002007303号