没做过BAS,看完这篇楼宇自控系统(BAS)的知识,你就懂什么叫BAS了,不要闲文章长就不看了,全网找不到第二篇帮你整理得这么全的了。
楼控系统(BAS)主要对以下设备进行监测和控制:
冷热源系统、空调系统、新风系统、风机盘管系统、给排水系统、送排风系统、照明系统、供配电系统和电梯设备监测等。
一、冷热源系统
1、冷水机组:
监控内容:
a、定时控制:按照预先编排的时间程序控制系统启停。
b、根据冷冻水总管供、回水温度和回水流量,计算大楼实际冷或热负荷,进行机组台数控制,并控制相应的水泵。
c、根据控制器内部存储的机组累计运行时间,对机组进行时间均衡调节,系统的优先权设计:需要启动时,开启累计运行时间最短的机组;需要关闭时,关闭累计运行时间最长的机组。
d、按照正确顺序一次连锁启停设备;
启动:冷却水泵→冷冻水泵→冷却塔风机→冷水机组;
停机:冷水机组→冷冻水泵→冷却水泵→冷却塔风机。
e、根据空调水供、回水总管压差,PID 调节旁通阀开度,保持集分水器供水压力稳定。
f、监测系统内各监测点的温度、压力、流量等参数,自动显示,定时打印及故障报警。
2、热交换器:
监控内容:
a、现场控制柜监控:通过现场控制柜,控制器对循环泵进行启停控制,读取开关状态、故障报警、主备泵的切换等;读取一、二次管路上传感器采集的水温、水压力等参数;控制器按时间自动启停循环泵。
b、自动水温调节:控制器根据测量二次管路上的水温与设定值的偏差,以PID(比例积分微分)方式调节一次水进口调节阀的开度,使二次水温度保持在设定范围内;当二次管路水温高于设定值时,减小一次进水口调节阀开度,以减少热交换,从而降低水温。当二次管路水温低于设定值时,增大调节阀开度,增加热交换,从而提高二次水水温;自动调节使调节阀开度达到一个稳定值,减少水阀频繁开关所带来的电能损耗与阀门执行器的损耗;根据温差的大小控制循环泵开启的数量。
c、设备连锁控制:调节阀与循环泵连锁,当循环泵开启时调节阀自动启动PID 调节,当循环泵停止时调节阀自动关闭。
d、维修指示:现场监控器记录设备的运行参数和累计运行时间,平衡设备使用率,提醒管理人员定期检修。
e、报警及数据记录:监控中心显示各个监控点回检状态;监控中心及时显示报警信息,包括时间;故障报警包括:循环泵故障报警和补水箱高、低液位报警。
监控内容:
a、回风温度自动控制:冬季自动调节水阀开度,保证回风温度为设定值;
夏季自动调节水阀开度,保证回风温度为设定值;
过渡季节根据新风的温湿度焓值,自动调节混风比。
b、回风湿度自动控制:自动控制加湿阀开闭,保证回风湿度为设定值。
c、空气过滤器两端压差过大时报警,提示清扫。
d、机组定时启停控制:根据事先排定的工作及节假日作息时间表,定时启停机组,自动统计机组工作时间,提示定时维修。
e、联锁保护控制:联锁:风机停止后,新回风排风门、电动调节阀、电磁阀自动关闭;
保护:风机启动后,其前后压差过低时故障报警,并联锁停机;
防冻保护:当温度过低时,开启热水阀,关新风门、停风机,报警。
f、重要场所的环境控制:在重要场所设温湿度测点,根据其温湿度,直接调节空调机组的冷热水阀,确保重要场所的温湿度为设定值;
在重要场所设二氧化碳测点,根据其浓度调节新风比。
(注:图中为四管制恒风变水量控温控湿全空气调节机组的BAS监控系统,可根据具体应用作出取舍。)
a、送风温度自动控制:冬季自动调节水阀开度,保证送风温度为设定值;
夏季自动调节水阀开度,保证送风温度为设定值;
过渡季节根据新风的温湿度焓值,自动调节混风比。
b、送风湿度自动控制:自动控制加湿阀开闭,保证送风湿度为设定值。
c、过滤器堵塞报警:自动控制加湿阀开闭,保证送风湿度为设定值。
d、过滤器堵塞报警:空气过滤器两端压差过大时报警,提示清扫。
e、机组定时启停控制:根据事先排定的工作及节假日作息时间表,定时启停机组,自动统计机组工作时间,提示定时维修。
f、联锁保护控制:联锁:风机停止后,新送风排风门、电动调节阀、电磁阀自动关闭;
保护:风机启动后,其前后压差过低时故障报警,并联锁停机;
防冻保护:当温度过低时,开启热水阀,关新风门、停风机,报警。
四、风机盘管温控系统
1、FCU联网型风机盘管温控器工作原理:
系统通过RS485通讯与OptiSYS系统联网集中监测各个风机盘管的启停状态、制冷/制热状态、电磁阀开关状态、温度设定值、风速状态,控制FCU301-1系统的启停、风速调节、温度设定等。
设定为制冷工况时,当设定温度超过室内温度1℃时,自动进入通风状态;设定为制热工况时,当设定温度低于室内温度1℃时,自动进入通风状态。
在空调主机部分的总的能耗费用表现为:
(1)冷水机组、冷却塔、冷冻水泵、冷却水泵等制冷设备所用电能的电费,也包括新风机、空调机的夏季用电费用或热水泵、热水炉等制热设备所用电能的电费、油费,也包括新风机、空调机的冬季用电费用。
(2)空调系统补充用水的水费(可忽略不计或由附加费用来体现)。
(3)冷源系统、空调系统等设备的折旧费、维护维修费。
(4)其他附加费用。
以上各类费用中,
(1)类费用可以通过准确地计量用电量计算出来。其他两项基本上是一个固定值,可以根据实际情况通过预置的方式输入计费系统,求出冷气系统每月每日每时的平均费用。
冷气系统的总费用:Σ冷气系统用电量X电费单价+设备折旧费+维护维修费+其他费用。
致热系统的总费用:Σ热系统用电量X电费单价+油费+设备折旧费+维护维修费+其他费用。
我们采用具备联网功能的风机盘管温控器,对每个房间的风机盘管分别进行有效运行时间的累计,即对每个风机盘管分别累计三个档位的运行时间,然后把三速开关有效时间按照各风机盘管高中、低三档不同风量比例进行归一,再累加,形成单个风机盘管运行归一时间,再累计各层所有风机盘管的归一运行时间,形成各层总的盘管归一运行时间,通过与总的空调能耗比较,按照比例去计算分摊每台风机盘管的空调费用,这样就实现了对每个房间进行空调计量的目的。
风机盘管信号的采集和处理是通过在每个房间安装可联网的风机盘管温控器,对风机盘管的运行时间和档位进行采集,并实时送到监控中心.进行数据的分析和累积,并可以增加远程控制功能,对风机盘管的启停进行远程控制、对拖欠空调使用费的用户实施停用空调的强制措施。
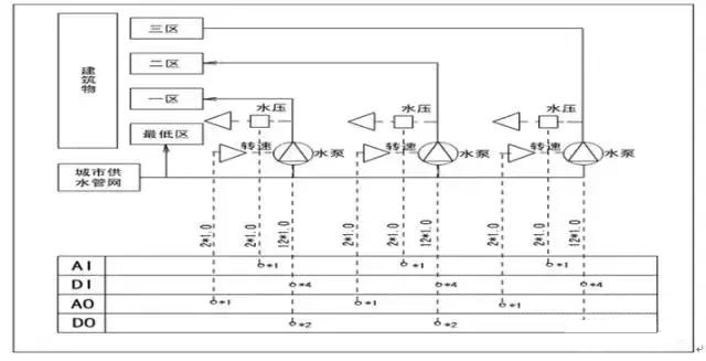
五、给排水系统
1、生活给水系统监控
高层建筑物的高度高,一般城市网管中的水压力不能满足用水要求,除了最下层的可由城市管网供水外,其于上部分均需加压供水。根据建筑物的给水要求、高度和分区压力等情况,进行合理分区,然后布置给水系统。现在城市中大多都选用水泵直接给水系统。
(1)水泵直接给水系统监控原理
水泵直接供水,较节能的方法是采用调速水泵供水系统,即根据水泵的供水量与转速成正比关系的特性,利用CPU对水泵电机的自动调速控制,使供水管的水压保持不变,从而实现恒压供水。
水泵直接给水系统原理如图所示:
(2)水泵直接给水系统的监控功能
各个小区供水泵的启停控制,同时还要监控水泵的运行状态故障报警,
根据供水水管压力的反馈值,CPU利用PID调节自动的控制调速电机的转速。
2、排水监控系统
(1)排水监控系统的原理
建筑物一般都有地下室,有的深入地面下2~3层或更深些,地下室的污水常不能以重力排除,在此情况下,污水集中于集水坑,然后用排水泵将污水提升至室外排水管中。
污水泵为自动控制,保证排水安全。
建筑物排水监控系统通常由水位开关、直接数字控制器(DDC)组成,如图所示:
生活排水监控系统原理图:
(2)排水监控系统的监控功能
污水集水坑和废水集水坑水位监测及超限报警;
根据污水集水坑与废水集水坑的水位,控制排水泵的启/停。当集水坑的水位达到高线时,联锁启动相应的水泵;当水位高于报警水位时,联锁启动相应的备用泵,直到水位降至低限时联锁停泵;
排水泵运行状态的检测及发生故障时报警;
累计运行时间,为定时维修提供依据,并根据每台泵的运行时间,自动确定作为工作泵还是备用泵。
六、送排风系统
1、送/排风机系统
监控设备 监控内容
送排风机 开关控制、手自动状态、运行状态、故障状态
排烟风机 运行状态、故障状态、手自动状态
2、监控内容
送排风机开/关控制(DO)
送排风机运行状态,手自动状态,故障报警(DI)
排烟风机运行状态,手自动状态,故障报警(DI)
3、控制内容
时间程序自动启/停各类风机,具有任意周期的实时时间控制功能。
监测送/排风机的运行状态、故障信号、手/自动状态,并累计运行时间。
中央站彩色图形显示,记录各种参数,包括状态、报警、启停时间、累计运行时间及其历史数据等。
七、供配电系统
供配电系统是为建筑物提供能源。为了保证供电可靠性,对一级负荷都设两路独立电源,互为备用,并且装设应急备用发电机组,以便在15s内保证事故照明、消防用电等。配电部分也分为“工作”和“事故”两个独立的系统,并在干线之间设有联络开关,故障、检修时可以互为备用。变电所只需定期巡视,不必设专人值班。
1、供配电系统的监控内容
(1)检测运行参数
电压、电流、功率和变压器的温度等,为正常运行时的计量管理、事故发生时的故障原因分析提供数据。
(2)监视电气设备运行状态
高低压进线断路器、主线联络断路器等各种类型开关的当前分/合状态;
提供电气主接线图开关状态画面;
发现故障自动报警,并显示故障位置、相关电压和电流数值等。
(3)对建筑物内所有用电设备的用电量进行统计及电量计算与管理
空调、电梯、给排水和消防喷淋等动力电和照明用电;
绘制用电负荷曲线如日负荷、年负荷曲线;
实现自动秒表、输出用户电费单据等。
(4)对各种电气设备的检修、保养维护进行管理
建立设备档案,包括设备配置、参数档案、设备运行、事故和检修档案,生成定期维修操作单并存档,避免维修操作时引起误报警等。
2、供配电系统的监测方法及原理
(1)高压线路的电压及电流监测
6~10kV高压线路的电压及电流测量方法如下图:
高压线路电压及电流的测量方法
(2)低压端电压及电流监测
低压端(380/220V)的电压及电流测量方法与高压侧基本相同,只不过是电压和电流互感器的电压等级不同。低压配电系统监控原理图如下图:
低压配电系统监控原理图
(3)参数检测、设备状态监视与故障报警
DDC通过温度传感器/变送器、电压变送器、电流变送器、功率因素变送器自动检测变压器线圈温度、电压、电流和功率因素等参数,与额定数值比较,发现故障报警,显示相应的电压、电流数值和故障位置。经由数字量输入通道可以自动监视各个断路器、负荷开关和隔离开关等的当前分、合状态。
(4)电量计量
DDC根据检测到的电压、电流、功率因数计算有功功率、无功功率,累计用电量。为绘制负荷曲线、无功补偿及电费计算提供依据。
3、功率、功率因数的检测
通过电压与电流的相位差,可以测得功率因数。有了功率因数、电压、电流数值即可求得有功功率和无功功率。
4、应急柴油发电机与蓄电池组的检测方法
(1)为了保证消防泵、消防电梯、紧急疏散照明、防排烟设施和电动放火卷帘门等消防用电,必须设置自备应急柴油发电机组,按一级负荷对消防设施供电。柴油发电机应起动迅速、自起动控制方便,市网停电后能在10~15s内接带应急电源。应急柴油发电机组电压、电流等参数,机组运行状态、故障报警和日用油箱液位等。
(2)高层建筑物中的高压配电室对继电器保护要求严格,一般的纯交流或整流操作难以满足要求,必须设置蓄电池组,以提供控制、保护、自动装置及事故照明等所需的直流电源。对电池组的检测包括电压监视、过流电压保护及报警等.
应急柴油机组与蓄电池组的监控原理如下图:
电梯系统:
监控设备
监测内容
机组启停控制 监测电梯的工作状态、故障状态、上行状态、下行状态、自动统计工作时间,提示定时维修
连锁保护控制 故障时报警
检测内容:
电梯的工作状态 (DI)
故障状态(DI)
上行状态(DI)
下行状态(DI)
工作时间(AI)
如果看到这里你不懂什么是AI\AO\DI\DO,那你好好看下这篇文章了,直接贴链接,就不复习了,自己看。
https://www.xiaodedian.com/article/315









全部 0条评论